
產品簡介 / Introduction
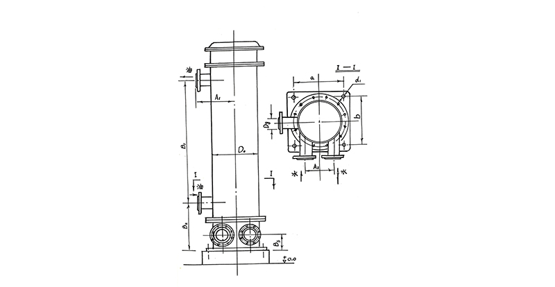
管式冷油器流動運行特點為油經殼程,水經管程。管外油側傳熱系數為管內傳熱系數的1/20-1/10,熱阻主要在油側。本設備將傳統的弓形隔板改為旋流導板,主要原理為:冷卻油經油泵進入冷油器殼程,隨旋流導板導向旋轉前行,油在旋轉同時沿管周方向沖刷,管的結構參數是經多次對比試驗進行優選的結果,性能優良,使用安全可靠,為汽輪機組理想的輔機配套產品。





冷油器檢驗報告

冷油器檢驗報告

冷油器檢驗報告

冷油器企業標準

冷油器企業標準

冷油器企業標準

冷油器企業標準

冷油器企業標準

冷油器企業標準

冷油器企業標準

連云港久盛聯系方式
全國服務熱線
友情鏈接: 江蘇邦久石化裝備有限公司